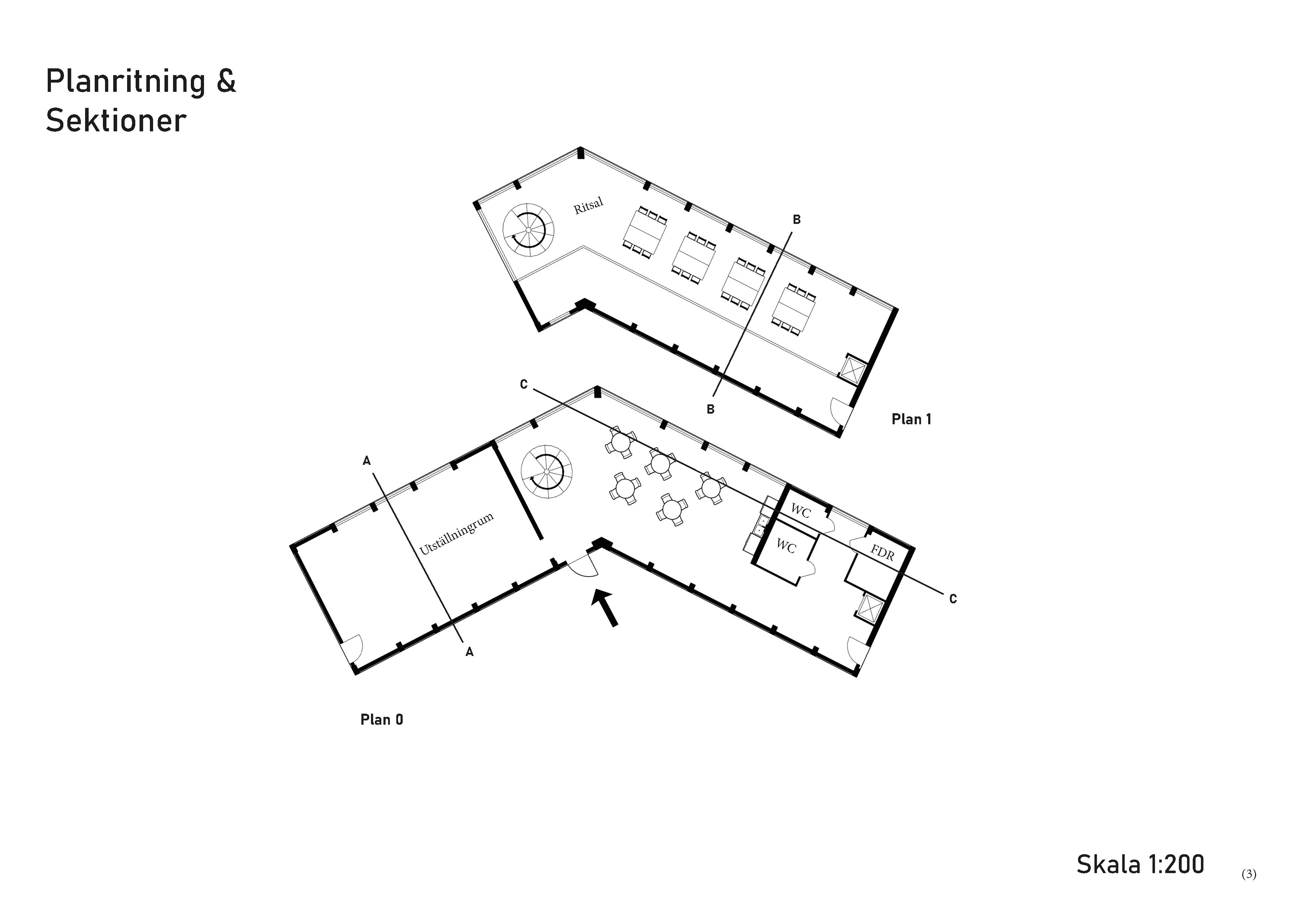
Johan Sköld Projektet är inspirerat av den Japanska husstilen Minka. En byggnad som består av naturliga material och smälter in i naturen. Konstruerad av stora bjälkar i trä. Byggnaden besår av tre olika delar, ett utställnigsrum för arkitekturprojekt, ateljé och kök/lunchrum.